Aménagement intérieur en vue de l’installation d’un escalier — Aperçu
Ce projet a pour but l’aménagement intérieur d’une maison afin d’y placer un escalier.

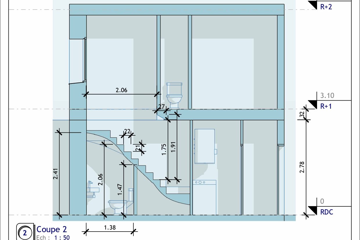
L’aménagement tient compte des pièces existantes, ce qui a rendu le projet plus contraignant.
Afin de garder les pièces importantes notamment à l’étage, l’escalier est à deux quarts tournants et s’insère dans le plus petit espace possible.
Dans un deuxième temps, l’espace sous l’escalier accueil des rangements et des toilettes.
L’objectif est d’optimiser l’ensemble pour perdre le moins d’éléments et le moins de rangements.
Le placard dans l’entrée est raccourci pour pouvoir mettre l’escalier. Il change d’orientation pour s’ouvrir dans le couloir et ainsi améliorer son ergonomie.
L’ensemble du projet est pensé de façon sobre, avec du bois et de l’enduit clair, afin de le mettre en valeur, dans une maison plus hétéroclite.
Les contraintes de places très strictes ont rendu ce projet plutôt rigide. Le travail de l’artisan est donc primordial afin de le réaliser précisément.

L’espace disponible au sol rend le passage d’escalier étroit, il s’y imbrique parfaitement, un escalier plus petit n’aurait pas respecté les normes de confort.
L’emplacement des équipements ayant besoin des réseaux électriques et d’eaux, a été préservé au maximum afin de limiter les travaux de raccordements.
