Relevé et restauration d’une ruine
à La Chapelle du Bois — Aperçu
Ce projet de transformation vise à restaurer une maison typique du Perche sarthois.

Le projet allie l’architecture contemporaine pour mettre en valeur l’existant.
Ce projet reprend l’architecture classique de la maison percheronne.
Le but est de renforcer cette architecture à l’aide d’une lucarne alignée à la porte d’entrée. De même, un enduit est réalisé pour restaurer la façade à son état d’origine.
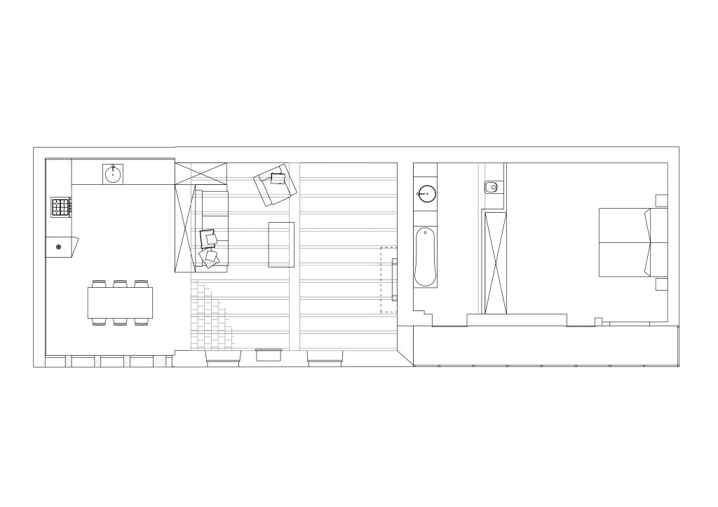
La maison étant la mieux préservée, c’est ici qu’on a créé la pièce de vie, plus chaleureuse grâce aux poutres apparentes et aux carreaux de ciments.
À l’inverse, les deux ruines de chaque côté vont servir de base à une architecture plus moderne, répondant aux besoins actuels.
La partie gauche accueil la cuisine, ouverte sur le salon. Et la partie droite, l’ancienne grange, plus basse, permet de créer un espace nuit agréable desservi par un passage vitré.
Le relevé pour ce projet a été réalisé à l’aide d’un drone pour recueillir des photos à 360°.

- Plan projet

2. Plan existant
